Á¦Ç°¼Ò°³
ģȯ°æ ÄÜÅ©¸®Æ®Á¦Ç° Àü¹® »ý»ê¾÷ü
(ÁÖ)Á־ȱâ¾÷
- Ȩ
- Á¦Ç°¼Ò°³
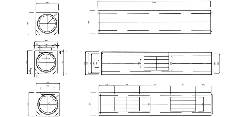
- JA¿øÇü »ç°¢¼ö·Î°ü
JA¿øÇü »ç°¢¼ö·Î°ü

JAR-1, JAR-2, JAR-3
- JAR-1 (¹«°³) µµ·Î ¹× ÁÖÂ÷Àå µî ¿ì¼ö·®ÀÌ ¾ø´Â °÷¿¡ »ç¿ë
- JAR-2 (À¯°³) µµ·Î ¹× ÁÖÂ÷Àå µî ¿ì¼ö·®ÀÌ º¸ÅëÀÎ °÷¿¡ »ç¿ë
- JAR-3 (À¯°³2) µµ·Î ¹× ÁÖÂ÷Àå µî ¿ì¼ö·®ÀÌ ¸¹Àº °÷¿¡ »ç¿ë

´ÜÀ§ : (m/m)
| ȣĪ | ±Ô°Ý | Áß·®(kg) | ||
|---|---|---|---|---|
| Á¾·ù | ³»°æ | ¿ÜºÎ±Ô°Ý | ||
| JAR D300 | JAR-1 (¹«°³) | 300 | 420 x 420 x 2000 | 444 |
| JAR D400 | JAR-1 (¹«°³) | 400 | 540 x 540 x 2000 | 715 |
| JAR D500 | JAR-1 (¹«°³) | 500 | 660 x 660 x 2000 | 1015 |
| JAR D600 | JAR-1 (¹«°³) | 600 | 780 x 780 x 2000 | 1395 |
| JAR D300 | JAR-2 (À¯°³1) | 300 | 420 x 420 x 1000 | 430 |
| JAR D400 | JAR-2 (À¯°³1) | 400 | 540 x 540 x 2000 | 695 |
| JAR D500 | JAR-2 (À¯°³1) | 500 | 660 x 660 x 2000 | 990 |
| JAR D600 | JAR-2 (À¯°³1) | 600 | 780 x 780 x 2000 | 1370 |
| JAR D300 | JAR-3 (À¯°³2) | 300 | 420 x 420 x 2000 | 415 |
| JAR D400 | JAR-3 (À¯°³2) | 400 | 540 x 540 x 2000 | 675 |
| JAR D500 | JAR-3 (À¯°³2) | 500 | 660 x 660 x 2000 | 966 |
| JAR D600 | JAR-3 (À¯°³2) | 600 | 780 x 780 x 2000 | 1350 |
| JAR D300 | JAR-300 (JAG) Áý¼öÁ¤ | 300¿ë | 550 x 550 x 750 | 467 |
| JAR D400 | JAR-400 (JAG) Áý¼öÁ¤ | 400¿ë | 700 x 700 x 850 | 653 |
| JAR D500 | JAR-500 (JAG) Áý¼öÁ¤ | 500¿ë | 800 x 800 x 950 | 900 |
| JAR D600 | JAR-600 (JAG) Áý¼öÁ¤ | 600¿ë | 900 x 900 x 1000 | 1050 |
